細部にまでこだわりを尽くしたルームプラン
3LDK+Store room+2WIC
70.99㎡
※防災備蓄倉庫/0.57㎡ 宅配BOX面積/0.57㎡含む
間取りを見る
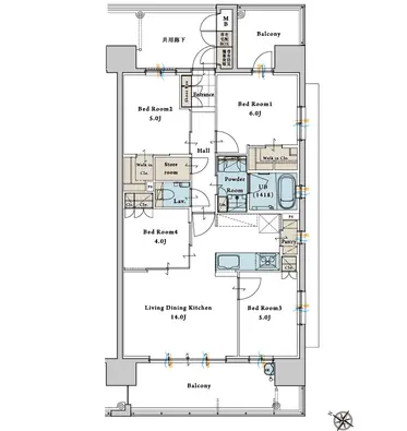
4LDK+Store room+Pantry+2WIC
76.80㎡
※防災備蓄倉庫/0.54㎡ 宅配BOX面積/0.36㎡含む
4LDK+Cabin+Store room+2WIC
94.11㎡
※防災備蓄倉庫/1.11㎡ 宅配BOX面積/0.38㎡含む
INFORMATION